21524-canoa-ateliecb-025-web.jpg

ateliê campo belo

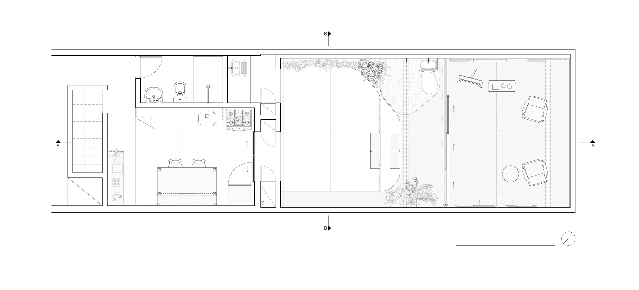
Ateliê Campo Belo

Autores: Mario Moura e Victor Gurgel

Luminotécnica: Ricardo Heder

Cálculo de estrutura metálica: Tiago Roveri

Gerenciamento de obra: Canoa Arquitetura

Local: São Paulo, SP

Área: 72 m²

Projeto: 2019

Obra: 2019

Fotos: Ana Mello