IMG_4274_75.jpg

apartamento joão moura

Apartamento João Moura

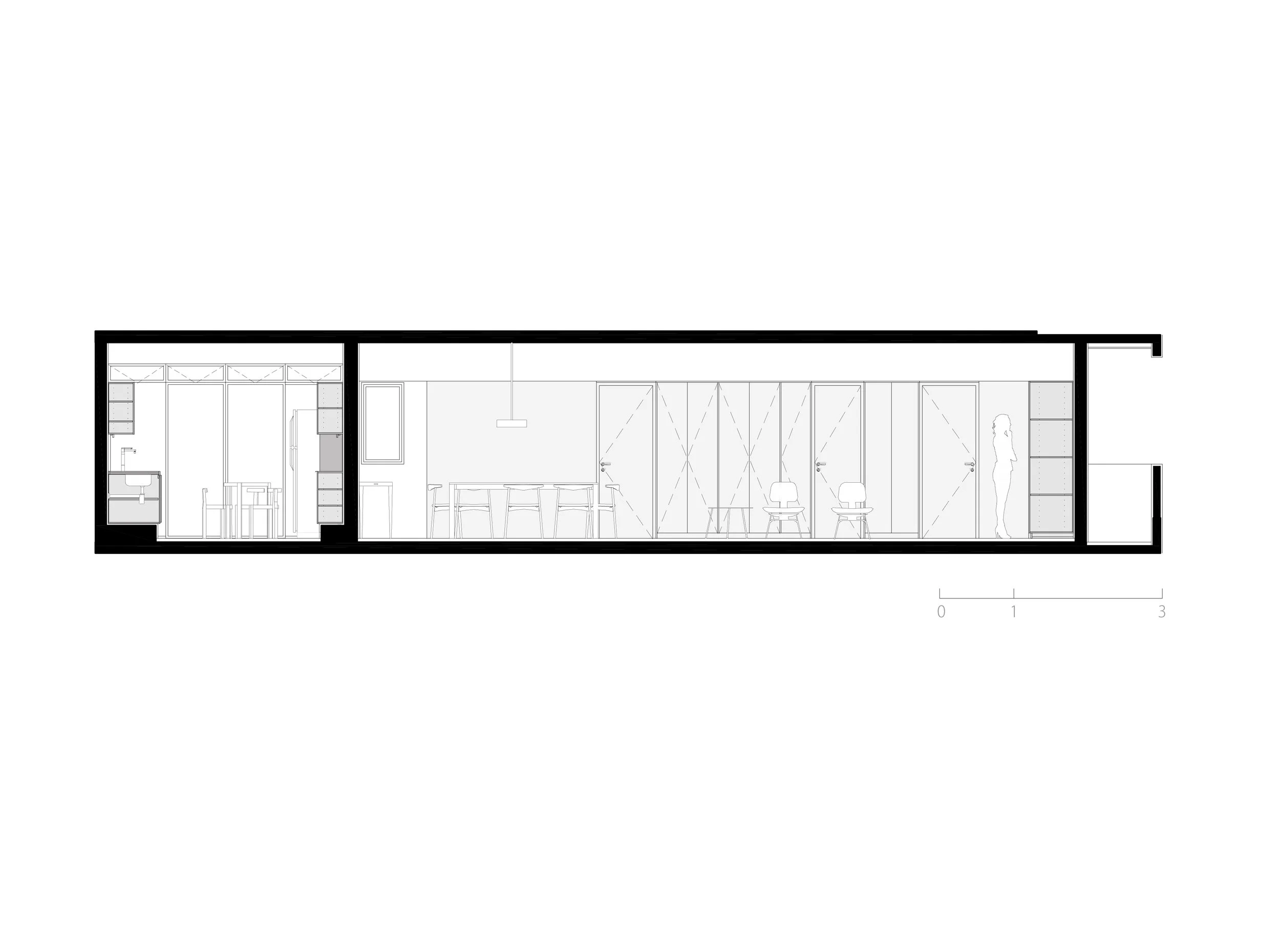
O partido para o projeto do Apartamento João Moura teve origem em uma demanda específica da cliente: vinda de um imóvel significativamente maior, ela necessitaria de bastante espaço de depósito para pertences variados.

O novo apartamento, localizado no bairro de Pinheiros em São Paulo, possuía 82m² e dispunha de planta alongada, porém compartimentada por reformas anteriores. Propôs-se assim uma longa linha de armários, um elemento contínuo que se desdobra pelos ambientes, servindo-os de acordo com cada necessidade e assumindo as dimensões adequadas aos variados utensílios a serem acondicionados. Este grande objeto cumpre a função de vedo e passa então a conformar os espaços solicitados pelo programa de necessidades – dormitório, escritório, salas de estar e jantar – privilegiando aqueles destinados ao convívio; serve ainda como suporte para iluminação indireta nestes cômodos.

A cozinha recebeu também especial atenção, de modo que atendesse à solicitação por espaço de armários bem como oferecesse melhor funcionalidade e conforto; além de ampliada a área de bancada, foi proposta ali uma pequena mesa para refeições e apoio. Adjacente à cozinha, a área de serviço foi acrescida com a retirada do pequeno sanitário de serviço e recebeu como divisória caixilharia em perfis de aço tipo ‘cadeirinha’.

O projeto fez uso conciso de materiais. A marcenaria de todo apartamento foi realizada em compensado naval com aplicação externa de fórmica. Áreas molhadas receberam revestimento em piso e paredes de placas cimentícias, enquanto os demais ambientes se conectam por um piso único de madeira cumaru.

Autores: Pedro Del Guerra e Victor Gurgel

Local: São Paulo, SP

Área: 82 m²

Projeto: 2017

Obra: 2017-2018

Gerenciamento de obra: Canoa Arquitetura

Fotos: Rafaela Netto